QDY Model Hook Bridge Type Ladle Crane
Hook bridge type ladle crane is mainly used at the place where the molten metal is lifted . Working class is A7. The thermal-protective coating is added at the bottom of the main girder. The assembling and test of the crane conform to the document No.ZJBT[2007]375 which was issued by General Administration of Quality Supervision , Inspection and Quarantine of the People’s Republic of China. The place where molten nonmetal material and red-hot solid metal is lifted also can refer to this document.
Environmental conditions:
1. The temperature of working environment is -10-+60℃;
2. The relative humidity is no more than 50% when the temperature is +40℃;
3. If the requirements are more than about mentioned, it shall carry out the requirements in the purchase contract as the user asks.
The basic parameters (rated lifting weight, lifting height and span ,etc)of the crane shall be described when the user orders goods or signs a contract so that the product which may satisfy the working condition.
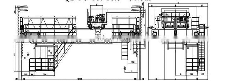
Drawing:
Xinxiang City, Henan Zhongyuan Hoisting Machinery Plant Co., Ltd. was established in 1985, it's crane manufacturer of the Ministry of Machinery Industry of China. Our Co.,Ltd is national grade two measure qualified department and we pass the ISO9001 international certification in 1999. The products are marketing in various industries of mine, building material, chemistry, electric power , communications, railway, olifield and port, etc. We have complete set CAD computer aided design systerm and large datebase; it is capable to undertake the design, manufacture and product development of various special purpose products and non-standard products.
Business Scope: LD 1-20t electric single-beam hoisting series products;5-600t general purpose bridge, gantry, metallurgy, upper rotation, lower-rotation electromagnetic suspend, insulation,grab bucket, explosion prevention crane series products LH3-100t electric block dual-beam series products; MH5-32t electric block gantry crane series products; 0.5-40t CD1 wire rope electric block series products series products; HS1 0.5-20t manual block series products; 0.5-10t ring-chain electric block serious products, 0.5-40t bend electric block series products; assemble and unassembled bridge , shipbuilding gantry crane, bridging crane, casting suspend and water and electricity large tonnage crane.
| Light crane A1 to A4 |
| Single girder bridge crane | 0.5 t / 1 t / 2 t / 3 t / 5 tons / 10 tons / 16 tons / 20 tons |
| Crane A5 to A6 |
| Single girder bridge crane | 5 tons / 10 tons / 16 tons / 20 tons / 30 tons |
| Single girder gantry crane | 5 tons / 10 tons / 16 tons / 20 tons / 30 tons |
| Double girder bridge crane | 5 tons / 10 tons / 16 tons / 20 tons / 32 tons / 50 tons |
| Double girder gantry machine | 5 tons to 150 tons |
| Heavy crane A8 to A9 |
| Double girder bridge crane | 5 tons to 500 tons |
| Single-beam gantry crane | 10 tons / 15 tons / 20 tons / 32 tons / 40 tons / 50 tons |
| Double girder gantry crane | 5 tons to 200 tons |

Your first choice for high efficiency work
1. 30years crane manufacture experience—We set up at 1985.
2. International standard indoor warehouse— we can delivery on time even bad weather
3. Famous trademark “Yuqi” , and we also have many certificate of patent.
4. Many senior crane design engineers, with fast and professional design.
5. Crane installation and crane commissioning service supply
Different type and special requirement can be customized.

Send Inquiry to This Supplier
You May Also Like
-
LD Electric Single Girder Overhead Traveling Crane 5 TonUS$ 500 - 2,000MOQ: 1 Set
-
General Bridge CranesUS$ 1 - 300,000MOQ: 1 Set
-
Demo of Electromagnetism Crane PrincipleNegotiableMOQ: 10 Pieces
-
8t/15m European Electric Single Beam CraneUS$ 5220 - 6300MOQ: 1 Bag
-
Custom Single Girder Overhead Crane With Electric HoistNegotiableMOQ: 1 Set
-
DYT Series Electro-hydraulic Pusher Rod for Crane and Port UnloaderNegotiableMOQ: 1 Piece
-
Konecones SWF Lift Motor Lift Motor MF11X-106N166P85006E-IP55 52292491NegotiableMOQ: 1 Piece
-
Double Girder Gantry Crane Cantilevers Winch Trolleys High Strength for SaleUS$ 29460 - 569000MOQ: 1 Set
-
CD 1Ton 2 Ton 5 Ton 10 Ton 15 Ton Remote Control Speed Traveling Wire Rope Electric HoistUS$ 2500 - 4500MOQ: 1 Piece
-
Workshop Using Single Beam Overhead Crane (LDA)US$ 1000 - 5000MOQ: 1 Set

